THE HOUSE NA
by SOU FUJIMOTO
In 2011, in western Tokyo.
模块化 MODULA/ 空间错动/ 视线 /透明性 /空间尺度
- 模块化& 空间尺度
- 日本传统榻榻米尺寸


- 技术图纸
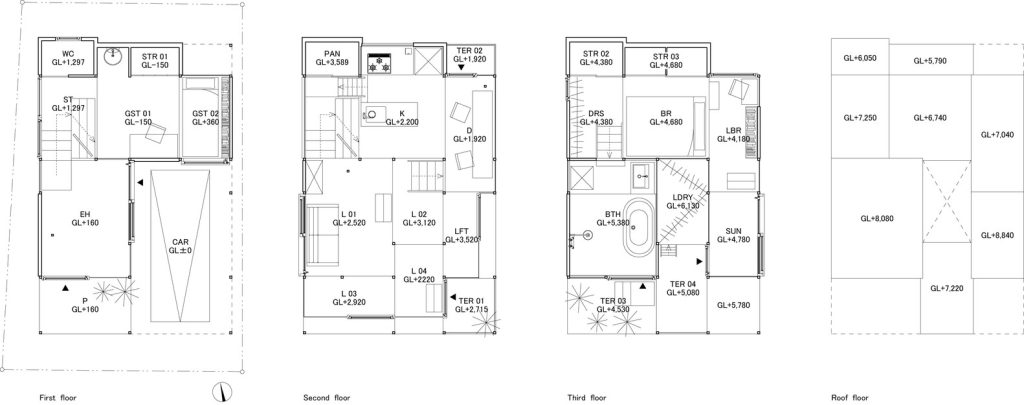
- 平面
- 立面


- 空间体验感
- view
- circulation
- 每个空间充当楼梯 & 家具

- 透明性& 渗透性





- 选址

https://www.archdaily.com/230533/house-na-sou-fujimoto-architects
by SOU FUJIMOTO
In 2011, in western Tokyo.
模块化 MODULA/ 空间错动/ 视线 /透明性 /空间尺度











https://www.archdaily.com/230533/house-na-sou-fujimoto-architects